Por María Eva Koutsovitis y Jonatan Baldiviezo | La enajenación de tierras públicas en extensiones que formaban parte del Parque de la Ciudad se lleva a cabo mediante una subasta pública electrónica, dispuesta como una enajenación con cargo, y es gestionada por el Fideicomiso Corporación Buenos Aires Sur S.E., con base en la Ley N° 5.704.
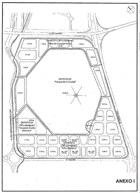
Los inmuebles a subastar “en bloque” se identifican catastralmente en el Distrito de Zonificación U 57 “Área de Equipamiento Lacarra” e incluyen las Manzanas 79B a 79G, sumando una superficie total aproximada de 78.862,2 m², con un Precio Base de U$S 1.900.000.
La obligación principal del adjudicatario (el cargo) es la ejecución de obras de infraestructura pública y el desarrollo del Sector Logístico, que incluye tendidos de redes (pluviales y eléctricas) y demoliciones.
Este proceso enfrenta cuestionamientos legales sobre la constitucionalidad de la Ley 5.704, argumentando que las manzanas que se venden formaban parte del Parque de la Ciudad (el segundo pulmón verde metropolitano), lo que constituiría una violación del mandato constitucional de proteger e incrementar los espacios verdes (Art. 27 CCABA), de la intangibilidad o protección de la integridad de los parques, y del principio de no regresividad ambiental.
1. Antecedentes y objeto de la venta
Cargos de la Venta: El mencionado cargo se constituye como la obligación principal de la enajenación. El adjudicatario se compromete a realizar la inversión necesaria para el cumplimiento de los cargos, que incluyen la ejecución de obras de espacio e infraestructura pública como tendido de redes de pluviales, electricidad de media tensión, alumbrado público, demoliciones y desmontes necesarios. Las obras de infraestructura pública deben ser concluidas en un plazo de VEINTICUATRO (24) meses desde la obtención del Permiso de Obra.
El cargo se divide en dos grandes componentes, ambos obligatorios para el adjudicatario:
a. Obras de Espacio e Infraestructura Pública
El adjudicatario debe ejecutar una obra integral de infraestructura pública, que incluye el tendido de redes de infraestructura, obras viales, mejoras en el espacio público y tareas de saneamiento y movimiento de suelo.
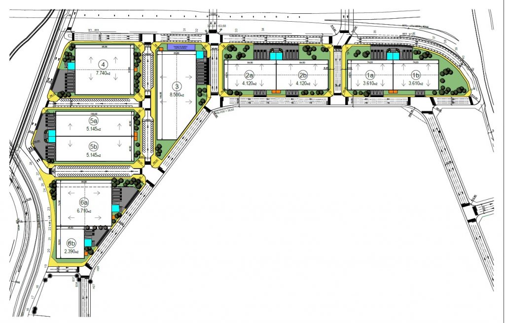
b. Equipamiento Sector Logístico
El adjudicatario tiene la obligación de ejecutar la edificación destinada al desarrollo de un sector logístico. El proyecto debe contemplar un mínimo de 53.000 m² cubiertos.
2. Superficie de las Tierras que se Vende
La subasta se refiere a seis manzanas (79B a 79G) en el Distrito U 57.
78.862,2 m² (aproximadamente 7.88 hectáreas)
En un proceso anterior de subasta, se vendieron diez lotes específicos (Circunscripción 1, Sección 68, Manzanas 123D y 123G) con una superficie total de 8.400 m² (aproximadamente 0.84 hectáreas).
Te puede interesar: Jorge Macri le regalará 14 mil millones de pesos a Elsztain para obras en el Edificio del Plata
3. Precio Base
Las manzanas se subastarán por un monto de DÓLARES ESTADOUNIDENSES UN MILLÓN NOVECIENTOS MIL (U$S 1.900.000), de acuerdo con la tasación realizada por el Banco Ciudad de Buenos Aires.
4. Cuestionamientos Legales y constitucionales de la venta de parte del Parque de la Ciudad
Las manzanas se encuentran ubicadas dentro de lo que solía ser un sector del Parque de la Ciudad. La Ley N° 5.235, que creó el Distrito del Deporte, reconoció que el Parque de la Ciudad abarcaba toda la manzana. De acuerdo con el Código de Planeamiento Urbano todo el predio pertenecía al Distrito E4 – 51 Parque de la Ciudad. Se estima que, previamente a la Ley 5.704, el Parque de la Ciudad tenía alrededor de 80 hectáreas, y la política de venta implica una reducción de casi 30 hectáreas de este parque público, de las cuales ahora se pusieron a la venta unas 8 hectáreas.
Estas 6 manzanas que se subastan, hasta la aprobación de La Ley N° 5704, pertenecían al Parque de la Ciudad. Tanto la Constitución como el Plan Urbano Ambiental otorgan la máxima protección a los parques públicos para conservar su integridad.
El art. 27 de la CCABA establece la “protección e incremento de los espacios públicos de acceso libre y gratuito” y “la preservación e incremento de los espacios verdes, las áreas forestadas y parquizadas, parques”.
Por su parte, el Plan Urbano Ambiental (Ley N° 2930) dispone que éste tiene como objetivo “el incremento, recuperación y mejoramiento del espacio público y de la circulación, de los parques, plazas y paseos y de las áreas de calidad patrimonial, a fin de dar lugar a funciones vitales como las de encuentro, relax, confort y socialización, asegurando a todos los habitantes el derecho a su uso, y de otorgar identidad a las distintas zonas de la ciudad”. Agrega que se debe cumplir con “(e)l mejoramiento funcional y ambiental de los parques, plazas y paseos existentes y ampliación de la oferta a escala urbana y barrial, a través de las siguientes acciones: 1. Promover su mejoramiento y rediseño manteniendo su integridad y considerando la diversidad de las demandas sociales”.
El PUA es más enfático en la protección de los parques al disponer que se debe mantener su INTEGRIDAD.
Cabe destacar que hace más de 25 años se votó la Ordenanza Nº 46.229 -sancionada por el Concejo Deliberante de la Ciudad de Buenos Aires- que estableció la prohibición de “otorgar concesión, cesión, transferencia de dominio, tenencia precaria, permiso de uso ni cambio de destino de todo espacio destinado a parque, plazas, plazoletas y de todo otro espacio verde de uso público, se encuentre parquizado, jardinizado o no, perteneciente al dominio público municipal…».
La Ciudad de Buenos Aires, a través de la Ordenanza 46.229 avanzó con una protección muy estricta de los espacios verdes y de los parques para impedir que continúe su reducción, su privatización y la transferencia de su dominio a manos privadas. Este principio legal se transformó en un principio constitucional al establecer la Constitución de la Ciudad que los espacios públicos deben incrementarse y no reducirse. El Plan Urbano Ambiental agregó que debe protegerse la INTEGRIDAD de los parques de la Ciudad.
Claramente existe una progresión en el reconocimiento de este derecho urbano ambiental para que no se reduzca la superficie de los parques a fin de conservar su integridad. La Ley N° 5704 constituye una manifiesta violación del principio de progresividad y de no regresividad en la protección de los parques de la ciudad al despojarse de, por lo menos, 29 hectáreas del Parque de la Ciudad. Ahora se estarían por vendier 8 hectáreas de dicho total.
Incluso soslayando esta cuestión, el Plan Urbano Ambiental establece únicamente tres destinos a las tierras públicas: espacios verdes públicos, viviendas sociales y equipamiento urbano. No autoriza la venta para negocios inmobiliarios privados.
Protección de Espacios Verdes (Art. 27 CCABA): La Constitución de la CABA establece el mandato de proteger e incrementar los espacios públicos y verdes y la preservación e incremento de los espacios verdes.
Principio de No Regresividad y Progresividad Ambiental: La venta de estas 6 manzanas, que pertenecían al Parque de la Ciudad para la construcción de edificios por privados, no solo incumple la obligación de incrementar los espacios verdes, sino que viola la obligación mínima de preservarlos. Esta reducción significativa de la superficie del Parque de la Ciudad contraviene el mandato de mantener su integridad (PUA) y constituye una regresión en materia ambiental.
Destino de Tierras Públicas (PUA Ley N° 2.930): El Plan Urbano Ambiental (PUA) establece que las tierras del GCBA deben ser utilizadas exclusivamente para tres destinos o usos: incrementar los espacios verdes públicos, proporcionar soluciones habitacionales sociales para sectores con déficit, y equipamiento urbano. La Ley N° 5.704 autorizó la venta a privados sin respetar este destino. La venta de estos predios a privados para desarrollo inmobiliario comercial destinará el suelo y las futuras viviendas a la población que ya puede acceder al mercado inmobiliario, en lugar de a aquellos en déficit habitacional, lo cual es contrario a lo ordenado por el PUA (Art. 8.d.3).
Violación de la Democracia Participativa: Se cuestiona que la decisión de vender los inmuebles se tomó de forma unilateral sin convocar o crear instancias de participación ciudadana previa para la población de la Comuna N° 8 o los habitantes del Barrio Villa Olímpica, violando los artículos 1 y 25 de la CCABA y el PUA. Los reclamos específicos sobre la reducción del parque público fueron planteados en la audiencia pública, pero los demandantes argumentan que el gobierno no acreditó la debida consideración de dichas observaciones antes de la sanción de la Ley N° 5.704.
5. Antecedentes. Ley N° 5.704
El proceso de privatización de estas tierras se origina con la sanción de la Ley N° 5.704 en el año 2016. Esta ley fue impulsada con el objetivo primario de facilitar la construcción de la Villa Olímpica para los Juegos de la Juventud de 2018, lo que resultó en la edificación de 31 complejos que luego fueron refuncionalizados en 1.150 viviendas sociales administradas por el Instituto de Vivienda de la Ciudad (IVC).
Para concretar este proyecto, la Ley 5.704 realizó una rezonificación crucial: desafectó el Distrito E4-51 «Parque de la Ciudad» y afectó una porción al nuevo Distrito U «Villa Olímpica». El análisis de la ejecución de esta ley revela una estrategia de gestión de suelo. Si bien la construcción de los edificios del Barrio Olímpico solo requirió el uso de entre 4 y 5 hectáreas de las casi 29 ha originales, la Ley 5704 declaró la vasta porción remanente, aproximadamente 25 hectáreas, como «innecesarios para la gestión del GCBA». Esta declaración habilitó legalmente la venta de estos terrenos no utilizados a manos privadas, transformando un proyecto de vivienda social en un mecanismo para la monetización masiva del patrimonio público, siendo la subasta de 2025 una continuación de este plan sistemático.
Te puede interesar: Jorge Macri sigue su cruzada contra los cartoneros y manteros
María Eva Koutsovitis es ingeniera hidráulica y coordinadora de la Cátedra Libre de Ingeniaría Comunitaria de la UBA. Es candidata a diputada nacional por la Ciudad de Buenos Aires por Unidad Popular
Jonatan Baldiviezo es abogado y director del Observatorio del Derecho a la Ciudad. Es candidato a diputado nacional por la Ciudad de Buenos Aires por Unidad Popular

